手入れの要らないお庭
No. 1085
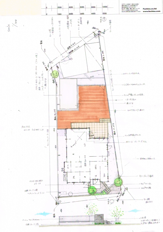
今回のお宅は仕事に忙しく庭の手入れをする時間のない施主様なので
極力、庭の手入れを削減できるよう提案させていただきました。
門柱にはクラシカルなセメンティを
床には300角タイル、600角タイル、色味をグレー系で統一したことでシックなデザインにまとめました。
玄関脇の通路には白砕石+防草シートを
バイク好きの施主様の要望でエスビック社のカスケードガレージを施工、裏庭に直接出入りできるよう、ドアを設けました。
将来、駐車場を広げる外構工事を考えていられるので工事を行いやすいようヒメイワダレソウの種を蒔かせていただきました。
ヒメイワダレソウは雑草を駆逐する程の繁殖力の強い植物なので手入れがとてもしやすいと施主様も喜んでおられました。
(町田市 エクステリア工事より)
極力、庭の手入れを削減できるよう提案させていただきました。
門柱にはクラシカルなセメンティを
床には300角タイル、600角タイル、色味をグレー系で統一したことでシックなデザインにまとめました。
玄関脇の通路には白砕石+防草シートを
バイク好きの施主様の要望でエスビック社のカスケードガレージを施工、裏庭に直接出入りできるよう、ドアを設けました。
将来、駐車場を広げる外構工事を考えていられるので工事を行いやすいようヒメイワダレソウの種を蒔かせていただきました。
ヒメイワダレソウは雑草を駆逐する程の繁殖力の強い植物なので手入れがとてもしやすいと施主様も喜んでおられました。
(町田市 エクステリア工事より)
